A Linha 17-Ouro, que segundo promessa do governo estadual pode ser entregue em 2026, deverá transportar cerca de 100 mil passageiros por dia. Novos usuários, entretanto, devem aderir ao novo ramal à medida que a linha — originalmente prometida para a Copa do Mundo — avance em direção a regiões mais adensadas e carentes de transporte público de massa.
Uma das áreas mais importantes para reforçar o caráter social do monotrilho é a comunidade de Paraisópolis, que contará com uma estação homônima.
🚎 Fique por dentro das notícias mais recentes sobre mobilidade:
✅ Canal do Via Trolebus no WhatsApp
✅ Canal do Via Trolebus no Telegram
O Metrô de São Paulo publicou em seu site as plantas da futura estação, que faz parte da próxima fase a ser concluída. Esse trecho ligará as estações Morumbi e São Paulo-Morumbi — que, apesar dos nomes semelhantes, são paradas distintas e localizadas em pontos diferentes. A primeira faz conexão com a Linha 9-Esmeralda, enquanto a segunda oferecerá integração com a Linha 4-Amarela.
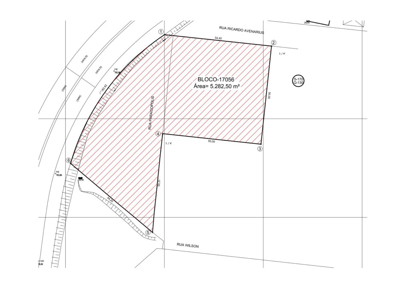
A planta prevê a ocupação de cerca de 5.282,50 m²:
A nova parada será implantada na Avenida Hebe Camargo, nas proximidades da Rua Wilson. Localização aproximada:
A comunidade de Paraisópolis tem, segundo dados do IBGE, cerca de 58.527 habitantes. Diversas lideranças locais já cobraram o governo estadual sobre a extensão, que poderá beneficiar diretamente o bairro. O morador da região, por exemplo, terá acesso rápido à Linha 4-Amarela, percorrendo apenas três estações — Américo Maurano, Estádio Morumbi e São Paulo-Morumbi. Já para chegar à Linha 9-Esmeralda, serão apenas duas estações: Panamby e Morumbi.
De acordo com um cronograma interno do Metrô, as obras desse novo trecho poderão ter início em 2028. Resta saber se a espera do morador chegará ao fim na próxima década.
Renato Lobo – Editor do Via Trolebus




