Durante o balanço anual de sua gestão, o governador de São Paulo, Tarcísio de Freitas, afirmou que pretende dar continuidade às obras de extensão do monotrilho da Linha 17-Ouro, além de concluir o trecho atualmente em construção entre a Avenida Washington Luís, o Aeroporto de Congonhas e a estação Morumbi.
🚎 Fique por dentro das notícias mais recentes sobre mobilidade:
✅ Canal do Via Trolebus no WhatsApp
✅ Canal do Via Trolebus no Telegram
O segundo segmento citado, que pode avançar nos próximos anos, compreende o trecho entre a estação Morumbi e São Paulo–Morumbi, onde a Linha 17-Ouro faria conexão com a Linha 4-Amarela do Metrô. Essa extensão deverá cruzar o rio Pinheiros e atender áreas como a favela de Paraisópolis, além do entorno do Estádio do Morumbi. Há um cronograma interno que indica o início das obras.
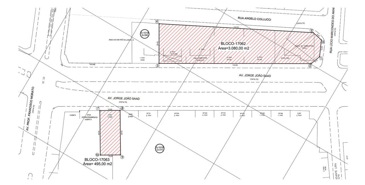
De acordo com plantas divulgadas anteriormente pelo Metrô, a estação de integração poderia ser implantada na avenida Jorge João Saad, no lado ímpar da via, no quarteirão localizado entre a estação da Linha 4-Amarela e a rua Lúcio Marques do Amaral:
No entanto, um empreendimento imobiliário foi construído no local, o que indica a possibilidade de revisão do projeto e do posicionamento da estação:
A futura ligação entre as linhas 4-Amarela e 17-Ouro deverá criar uma nova alternativa de deslocamento para passageiros que se deslocam entre bairros das zonas Oeste e Sul da capital, evitando trajetos mais longos, como a necessidade de utilizar a Linha 9-Esmeralda em viagens hipotéticas entre Vila Sônia e Santo Amaro.






